Exkluzivně nabízíme na prodej samostatně stojící rodinný dům, který se nachází v Uničově na ulici U Pily. Pozemek má celkem výměru příjemných 799 m2, přičemž zastavěná plocha domu a nádvoří činí 250 m2.
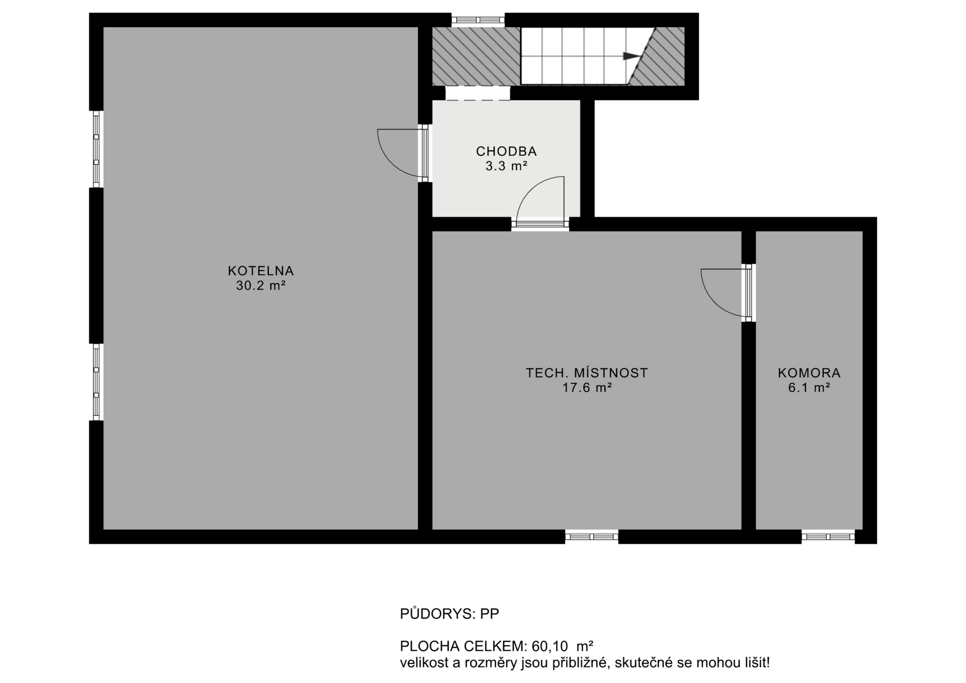
Tento dům je celý podsklepený a dále nabízí jedno nadzemní podlaží s ustoupeným obytným podkrovím. Dispozičně je řešený nyní jako 4+1 a to:
v 1NP 2+1 a v podkroví taktéž 2+1 (zde je možnost předělat kuchyň na koupelnu s toaletou nebo šatnu).
Další úložné prostory jsou na nyní nevyužité půdě.
Dům je plně napojen na elektřinu, plyn, vodu i kanalizaci. Vytápění je zajištěno plynovým kotlem s rozvodem do radiátorů. K dispozici je samostatné WC a koupelna s vanou.
Energetická náročnost domu je klasifikována jako "D",.
Na pozemku se dále nachází samostatně stojící prostorná garáž o zastavěné ploše 26,6 m2 a kůlna cca 20 m2, které poskytují dostatek úložného prostoru.
Zahrada je obklopena vzrostlými stromy, ovocnými stromy, skleníkem a záhonem na brambory či zeleninu, což nabízí skvělé možnosti pro pěstování a relaxaci.
S minimem sousedů a výbornou orientací pozemku a domu na jižní stranu, tato nabídka představuje atraktivní příležitost pro klidné bydlení.
V okolí se nachází veškerá občanská vybavenost. Lidl, Bila, nové nákupní centrum.
Cena je 6 490 000 Kč včetně odměny a služeb realitní kanceláře.



NOVÁ CENA VČETNĚ SLUŽEB RK 6 490 000 Kč
V realitách jsem od roku 2012. I mé předchozí pracovní aktivity byly spojené s úctou a profesionálním přístupem ke klientům.
Pracuji převážně na doporučení a pro stále klienty. Zakládám si na dlouhodobé spolupráci a osobní důvěře.
Práce realitního makléře mě skutečně baví a snažím se ji odvádět na špičkové úrovni. Tvořím stránky nemovitosti, 3D scany, půdorysy, vizualizace, točím video prohlídky, využívám profesionálního fotografa, vytvářím Home Staging, pracuji na sociálních sítích... vše s jasným cílem. Prodat vaši nemovitost za co nejvyšší cenu k vaší plné spokojenosti.
Proč vznikly tyto stránky?
Abych zde prezentoval, že když dva dělají totéž, nikdy to není totéž. Je všeobecně známo, že rozdíl mezi makléři je řekněme nemalý.
Za každým prodejem nemovitosti se totiž skrývá lidský příběh. A to je důvod, proč by nikdo neměl tak důležitý životní krok podceňovat. Ani prodávající, ani makléř.
Záleží mi na odvedení špičkové práce a na spokojenosti klienta. A dbám na svém dobrém jménu a pověsti. Za mě pak hovoří reference spokojených klientů.
Pokud jste dočetli až sem, máte můj obdiv a děkuji Vám. Pokud Vás cokoliv dalšího zajímá, neváhejte mě kontaktovat. Rád se s Vámi sejdu u kávy.