Představujeme vám jedinečnou příležitost ke koupi krásného, útulného zděného rodinného domu v obci Křelov, pouhé tři minuty jízdy od krajského města Olomouce. Hledáte-li dům ve skvělém technickém stavu, připravený k okamžitému bydlení, který by vám zároveň poskytl dostatek soukromí a prostoru pro realizaci vašich snů, pak je tato nemovitost na až neobvykle rozlehlém pozemku o velikosti 1845 m² přesně to, co hledáte.
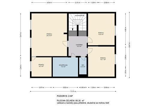
Tento dům se pyšní kvalitní stavbou z cihlových tvárnic POROTHERM PROFI 440 mm s dodatečným zateplením, což zaručuje energetickou třídu C a skutečně úsporné bydlení. Vnitřní užitná plocha domu dosahuje 195 m², s efektivně promyšlenou dispozicí 4+kk, která se nachází v prvním nadzemním podlaží - 78,34 m2 a podkroví 116,84 m2. V případě plně využitému celému podkroví má dům dispozici až 6+kk, což poskytuje flexibilní prostor pro rostoucí rodinu a její zájmy. Samozřejmostí je zastřešená terasa s pergolou o velikosti 11 m², ideální pro relaxaci a venkovní posezení, a praktický přístřešek na auto o rozloze 19 m², který umožňuje pohodlný průjezd až na zahradu.
Rozlehlý pozemek je rozdělen na tři funkční části, které nabízejí nekonečné možnosti pro odpočinek i aktivní zahradničení. Přední část zahrady vás okouzlí okrasnou skalkou a lípou, prostřední část láká k posezení pod nyní rozkvetlou třešní či vrbou a zadní část je zasvěcena ovocnému sadu např. švestek, meruněk, jabloní a maliniště.
K uskladnění zahradních potřeb a pro kutilské práce poslouží prostorná stodola o velikosti 80 m², která je navržena i jako praktická dílna. Nechybí ani nadstandardtní vytápěný skleník pro pěstování vlastní zeleniny.
Kombinace technologií a komfortu je zde prioritou. Dům je nezávislý na veřejném vodovodu díky vlastní vrtané studni o hloubce 50 metrů, která zajišťuje spolehlivý zdroj vody. Odpadní vody jsou řešeny vlastní čističkou odpadních vod, což přispívá k ekologickému a úspornému provozu. Vytápění a ohřev vody zajišťuje úsporný plynový kondenzační kotel, doplněný o kombinaci podlahového topení a deskových těles pro maximální tepelný komfort. Romantickou atmosféru a další zdroj tepla dodávají krásná kachlová kamna se zadní obsluhou, která eliminují nepořádek v obytném prostoru.
Obec Křelov nabízí ideální kombinaci klidu a soukromí s výbornou dostupností městského života. Najdete zde veškerou občanskou vybavenost včetně obecního úřadu, mateřské školy, základní školy, restauraci, hospůdku a multifunkčního sportovního hřiště. Poloha obce je strategická s vynikající dostupností na dálnici. Milovníci aktivního životního stylu ocení oblíbené cyklotrasy směřující na Olomouc, Náklo či Horku nad Moravou. Parkování je zajištěno s pohodlným vjezdem na vlastní pozemek.
Tato nemovitost představuje skvělé možnosti a je ideální pro ty, kteří hledají dům s velkým pozemkem, vynikající dostupností do Olomouce a na dálnici, a zároveň si cení soukromí a moderního, úsporného bydlení. Veškerá dokumentace k nemovitosti je připravena.



VČETNĚ SLUŽEB RK
V realitách jsem od roku 2012. I mé předchozí pracovní aktivity byly spojené s úctou a profesionálním přístupem ke klientům.
Pracuji převážně na doporučení a pro stále klienty. Zakládám si na dlouhodobé spolupráci a osobní důvěře.
Práce realitního makléře mě skutečně baví a snažím se ji odvádět na špičkové úrovni. Tvořím stránky nemovitosti, 3D scany, půdorysy, vizualizace, točím video prohlídky, využívám profesionálního fotografa, vytvářím Home Staging, pracuji na sociálních sítích... vše s jasným cílem. Prodat vaši nemovitost za co nejvyšší cenu k vaší plné spokojenosti.
Proč vznikly tyto stránky?
Abych zde prezentoval, že když dva dělají totéž, nikdy to není totéž. Je všeobecně známo, že rozdíl mezi makléři je řekněme nemalý.
Za každým prodejem nemovitosti se totiž skrývá lidský příběh. A to je důvod, proč by nikdo neměl tak důležitý životní krok podceňovat. Ani prodávající, ani makléř.
Záleží mi na odvedení špičkové práce a na spokojenosti klienta. A dbám na svém dobrém jménu a pověsti. Za mě pak hovoří reference spokojených klientů.
Pokud jste dočetli až sem, máte můj obdiv a děkuji Vám. Pokud Vás cokoliv dalšího zajímá, neváhejte mě kontaktovat. Rád se s Vámi sejdu u kávy.